4950 1ST AVENUE N, St Petersburg, FL 33710
- 1,140 sqft
Commercial Property
Built in 1951
4,792sqft lot
—— car garage
$48/sqft
Listed 16 days ago
Property Description
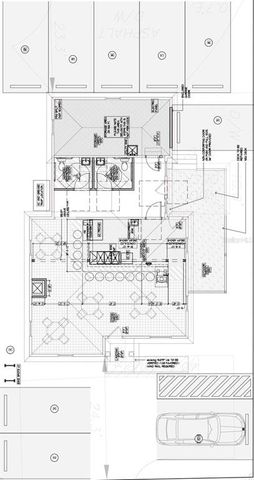
Prime Restaurant/Café Space – Fully Renovated & Ready 2026 4950 1st Ave. N. offers an exceptional opportunity to establish a restaurant or café in one of St. Petersburg’s most dynamic and growing neighborhoods. Currently undergoing a complete renovation, this 1,430 SF space with an additional 250 SF outdoor dining area will be delivered in early 2026 as a modern, turnkey-ready property designed for food and beverage operators. Property Highlights New Construction Quality: Brand-new roof, HVAC, updated electrical and plumbing, and a fully refreshed interior and exterior. Flexible Layout: Conceptual design includes bar area, open dining, two restrooms, storage/utility space, and outdoor dining deck. Visibility & Access: Illuminated signage on 1st Ave. N. plus nine on-site parking spaces, including ADA-compliant access. Move-In Ready Shell: Delivered as a fully upgraded vanilla shell, ready for the tenant’s custom FF&E. Location Advantages Positioned at the crossroads of Central Oak Park and Live Oak, the property sits minutes from Downtown St. Pete, the Gulfport Arts District, Treasure Island, and Madeira Beach. With easy access to U.S. 19 and I-275, it benefits from both local and commuter traffic. Traffic Counts: 1st Ave N ~18,500–20,000 cars/day; Central Ave ~17,000–19,000 cars/day; U.S. 19 ~52,000 cars/day; I-275 ~150,000 cars/day. Public Transit: Adjacent to the SunRunner rapid bus line, averaging 55,000 rides monthly. Local Character: Surrounded by historic mid-century neighborhoods with strong community support for “shop and dine local” initiatives. Demographics & Market Strength Population (3-mile radius): 65,000+ Median Household Income: $68,800 Dining Out Spend: average $300–$600 a household monthly Annual Visitors: 15M+ to the Tampa Bay/St. Pete region Why Your Business Will Thrive Here This location combines strong neighborhood support, robust disposable income, and steady tourism traffic, making it an ideal site for specialty coffee shops, artisan bakeries, destination cafés, or unique dining concepts. The property’s positioning near growth hubs like the Edge District, Warehouse Arts District, Grand Central District, Downtown St. Pete, and the Beaches ensures easy access for local residents.
- Listing Status:
- Active
- Date Added:
- September 26, 2025 at 05:00AM
- Listing Office:
- INSTA REAL ESTATE SOLUTIONS : 813-586-0654
- Listing Agent:
- Michael Schultz : 727-463-2274
- MLS ID:
- TB8431966

- General: AsbestosCrawlspacePillar/Post/Pier
- Road/Access: AlleyCity StreetMain Throrughfare
- Originating MLS: Stellar MLS
- County: Pinellas
- Zoning: ALLEN PARK SEC A BLK 1LOT 8213116004500010080
- Utilities: Public200+ Amp Service
- Water: Public
- Sewer: Public Sewer
- Source: Stellar MLS
This listing courtesy of Michael Schultz, INSTA REAL ESTATE SOLUTIONS
Monthly Payment
- Principal & Interest $
- Property Taxes $
- Home Insurance $
- VA Funding Fee $
Location
Schools Nearby
Disston Academy
5125 11th Ave S, Gulfport, FL, 33707
Grades 5-12
0.78 miles away
Disston Academy
5125 11th Ave S, Gulfport, FL, 33707
Grades 5-12
0.78 miles away
Disston Academy
5125 11th Ave S, Gulfport, FL, 33707
Grades 5-12
0.78 miles away